Добро пожаловать на http://vipplan.ru

Випплан Киселевск - это тысячи проектов домов в нашем каталоге!

Вы всегда сможете найти для себя проект дома вашей мечты! Даже если этого не случилось, мы готовы в любую минуту предложить проект индивидуального дома.

Забыли пароль?
Вы еще не регистрировались?

Перейдите по ссылке ниже на страницу регистрации.

Регистрация...

Внимание!!!

В проектную документацию могут быть внесены изменения любой сложности, в соответствии в Вашими пожеланиями!

Полезные статьи

Уклон кровли дома

Чтобы вода быстрее уходила с кровли Вашего дома, скатам необходимо придать уклон, который выражающийся в процентах или градусах и измеряющийся геодезическими инструментами. Уклон кровли обозначает угол наклона ската к горизонту. Чем больше уклон, тем круче крыша. У новомодных зданий наклон кровли делают не очень большим....

Утепление стен дома изнутри

Утепление стен дома изнутри – это не правильный метод теплоизоляции помещения и используется в самом крайнем случае, когда других вариантов уже не остается. Как правило, утепление стен изнутри выполняется по незнанию или вынужденно, поскольку, теплоизоляция внутренних помещений дома другим способом невозможна. Вопросы теплоизоляции необходимо решать на стадии проектирования дома или коттеджа, а не тогда когда дом уже построен и приходится исправлять совершенные ошибки по факту....

Проекты домов и коттеджей > Каталог проектов домов > Проект индивидуального жилого дома с мансардой Vg1521

Проект индивидуального жилого дома с мансардой Vg1521

Проект индивидуального жилого дома с мансардой
Зарегистрируйтесь

Проект № Vg1521


Техническое описание
Общая площадь: 162 м2
Жилая площадь: 99 м2
Высота здания: 9 м
Размеры дома: 12м×9м
Кол-во комнат: 5
Цокольный этаж: нет
Гараж: есть
Мансарда: есть

Kонструкция
Фундамент: Ленточный монолитный ж/б под несущими стенами
Перекрытия: Деревянные балки
Материал стен: Газобетонные блоки

Архитектурный раздел
Конструктивный раздел
АР+КР - 56 000 (Со скидкой 20%)
Проект индивидуального одноэтажного жилого дома с мансардой размерами здания 12,00 x 9,20 м. Наружная отделка здания : штукатурка, дикий камень. Фундамент – ленточный монолитный ж/б под несущими стенами. Наружные стены: газобетонные блоки, минеральная вата, фасадная штукатурка. Внутренние стены - из газобетонных блоков. Перегородки: 1й этаж - газобетонные блоки, мансарда — каркасные с ГКЛ. Снаружи вентканалы и дымоходы отделываются клинкерной плиткой. Перемычки - монолитные и сварные из профиля проката. Пол первого этажа - пол по грунту. Межэтажное перекрытие — деревянные балки с теплошумоизоляцией в межбалочном пространстве. Кровля — металлочерепица. Окна - металлопластиковые, выполненные по индивидуальному заказу.
Генплан застройки участка / Паспорт проекта 7000 руб / 10000 руб
Инженерный раздел (полный) 81000 руб
Смета на строительство 40500 руб
Теплотехнический расчет материалов стен Бесплатно
Стоимость проекта со незначительнми изменениями 65950 руб
Стоимость проекта со средними изменениями* 78100 руб
Стоимость проекта со значительными изменениями** 81300 руб

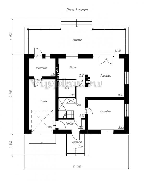
План первого этажа


Тамбур — 3,62 м2
Холл — 6,60 м2
Гостиная — 19,41 м2
Кухня — 7,18 м2
Гостевая — 14,45 м2
С/у — 3,91 м2
Бойлерная — 6,51 м2
Гараж — 17,98 м2

План мансардного этажа


Холл — 11,44 м2
Спальня — 18,64 м2
Спальня — 19,49 м2
Спальня — 15,84 м2
Гардероб — 7,62 м2
С/у — 9,03 м2
Балкон — 2,57 м2
Проект индивидуального жилого дома с мансардой Проект индивидуального жилого дома с мансардой Проект индивидуального жилого дома с мансардой Проект индивидуального жилого дома с мансардой

Модификации проектов

Внесение изменений и привязка к участку строительства

В любой из проектов от компании VIPplan - Киселевск по вашему желанию могут быть внесены изменения в материалы стен, материалы наружной отделки дома, а также будет произведена адаптация проекта под конкретный регион строительства (с учетом грунтов региона, геологических особенностей вашего участка и местных климатических условий) - БЕСПЛАТНО !!! (кроме проектов со скидкой и проектов наших партнеров).

Любой из проектов, размещенных на сайте kiselevsk.vipplan.ru мы можем выполнить из требуемых вам строительных материалов: ячеистый бетон (газобетон, пеноблок), керамоблок, кирпич, шлакоблок, бетонный блок, дерево (брус, клееный брус), каркасная технология (деревянный каркас, металлокаркас (ЛСТК)).

Фасад дома и его наружную отделку так же возможно выполнить с применением различных облицовочных материалов: структурной штукатурки, (с утеплителем и без), сайдингом (пластиковый или металлосайдинг), фиброплитами, кирпича.

 
6 Избранные
проекты

Доставка проектов по России: Москва (Московская область), Санкт-Петербург (Ленинградская область), Краснодар, Ростов-на-Дону, Ставрополь, Сочи, Волгоград, Новосибирск, Белгород, Брянск, Воронеж, Саратов, Хабаровск, Астрахань, Нальчик, Владикавказ, Екатеринбург, Тюмень, Самара, Нижний Новгород, Казань, Пермь, Уфа, Челябинск, Красноярск, Ханты-Мансийск, Иркутск, Курган, Оренбург, Омск, Томск, Барнаул, Новокузнецк, Кемерово, Абакан, Чита, Якутск, Южно-Сахалинск, Петропавловск-Камчатский и страны ближнего зарубежья: Белоруссия, Украина, Казахстан