Добро пожаловать на http://vipplan.ru

Випплан Киселевск - это тысячи проектов домов в нашем каталоге!

Вы всегда сможете найти для себя проект дома вашей мечты! Даже если этого не случилось, мы готовы в любую минуту предложить проект индивидуального дома.

Забыли пароль?
Вы еще не регистрировались?

Перейдите по ссылке ниже на страницу регистрации.

Регистрация...

Внимание!!!

В проектную документацию могут быть внесены изменения любой сложности, в соответствии в Вашими пожеланиями!

Полезные статьи

Свайно-ростверковый, буронабивной фундамент

Для объединения свай в общий фундамент устанавливают бетонные ростверки (железобетонные плиты). Устройство ростверка зависит от расположения, вида свай и конструкции здания. Ростверки могут быть монолитными, сборными или сборно-монолитными, также возможны безростверковые решения. ...

Комбинированные дома

Посмотрите, насколько далеко шагнула архитектура за последние десятилетия. Сколько изменилось в облике современных городов. А задумывались ли наши родители, о том что они увидят необыкновенные небоскребы и элитные многоквартирные дома, чьи фасады напоминают обруганную капиталистическую действительность. У людей появилась возможность построить дом за городом и в тишине на природе, реализовать любые дизайнерские фантазии. Те, кто может позволить себе частный дом, не ограничены финансами. Для многих частный дом – это показатель их материального благополучия, поэтому никто из них не хочет испол...

Проекты домов и коттеджей > Каталог проектов домов > Одноэтажный дом с мансардой и просторной террасой Vg2315

Одноэтажный дом с мансардой и просторной террасой Vg2315

Одноэтажный дом с мансардой и просторной террасой
Зарегистрируйтесь

Проект № Vg2315


Техническое описание
Общая площадь: 253.55 м2
Жилая площадь: 142.55 м2
Высота здания: 9.52 м
Размеры дома: 11.46м×17.66м
Кол-во комнат: 5
Цокольный этаж: нет
Гараж: нет
Мансарда: есть

Kонструкция
Фундамент: ленточный монолитный ж/б
Перекрытия: монолитная ж/б плита
Материал стен: Газобетон

Архитектурный раздел
Конструктивный раздел
Инженерный раздел
АР+КР - 72 000 (Со скидкой 20%)
АР+КР+ИР - 160 900 (Со скидкой 50%)
Проект индивидуального одноэтажного жилого дома с мансардой с размерами здания 11,46 x 17,66 м. Наружная отделка здания – облицовочный кирпич. Фундамент – ленточный монолитный под несущими стенами, "щелевой" под террасой. Наружные стены – газобетонные блоки, воздушный зазор, облицовочный кирпич. Внутренние стены – газобетонные блоки Перегородки – газобетонные блоки Пол 1 этажа - пол по грунту, межэтажно перекрытие - монолитная ж/б плита. Крыша многоскатная. Кровля – цементно-песчаная черепица. Окна — металлопластиковые.
Генплан застройки участка / Паспорт проекта 7000 руб / 10000 руб
Инженерный раздел (полный) 88900 руб (127000 руб)
Смета на строительство 63500 руб
Теплотехнический расчет материалов стен Бесплатно
Стоимость проекта со незначительнми изменениями 83650 руб
Стоимость проекта со средними изменениями* 102700 руб
Стоимость проекта со значительными изменениями** 107800 руб

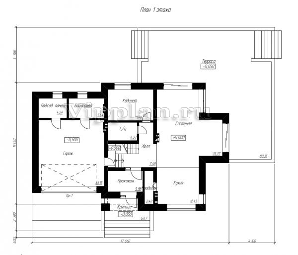
План первого этажа


Прихожая — 5,98 кв м
Холл — 7,48 кв м
С/у — 4,37 кв м
Кабинет — 11,48 кв м
Гостиная — 33,37 кв м
Кухня — 12,45 кв м
Кладовая — 2,4 кв м
Бойлерная — 5,64 кв м
Подсобка — 4,54 кв м
Гараж — 35,15 кв м

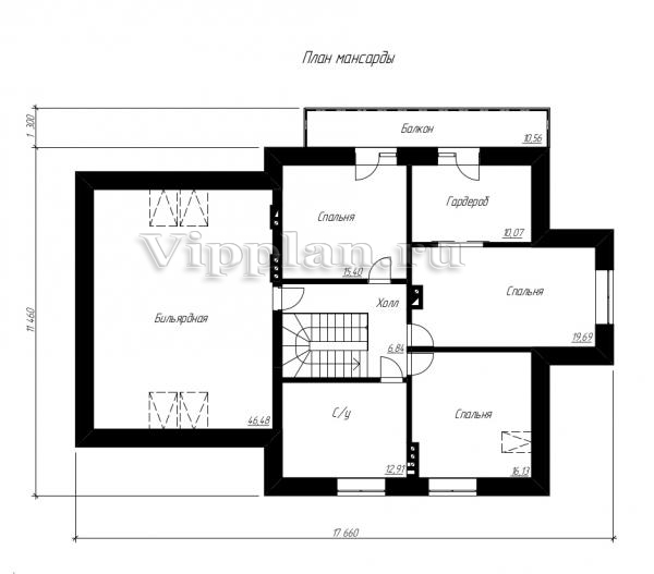
План мансардного этажа


Холл — 6,84 кв м
Бильярдная — 46,48 кв м
Спальня — 15,4 кв м
Гардероб — 10,07 кв м
Спальня — 19,69 кв м
Спальня — 16,13 кв м
С/у — 12,91 кв м
Одноэтажный дом с мансардой и просторной террасой Одноэтажный дом с мансардой и просторной террасой Одноэтажный дом с мансардой и просторной террасой Одноэтажный дом с мансардой и просторной террасой

Модификации проектов

Внесение изменений и привязка к участку строительства

В любой из проектов от компании VIPplan - Киселевск по вашему желанию могут быть внесены изменения в материалы стен, материалы наружной отделки дома, а также будет произведена адаптация проекта под конкретный регион строительства (с учетом грунтов региона, геологических особенностей вашего участка и местных климатических условий) - БЕСПЛАТНО !!! (кроме проектов со скидкой и проектов наших партнеров).

Любой из проектов, размещенных на сайте kiselevsk.vipplan.ru мы можем выполнить из требуемых вам строительных материалов: ячеистый бетон (газобетон, пеноблок), керамоблок, кирпич, шлакоблок, бетонный блок, дерево (брус, клееный брус), каркасная технология (деревянный каркас, металлокаркас (ЛСТК)).

Фасад дома и его наружную отделку так же возможно выполнить с применением различных облицовочных материалов: структурной штукатурки, (с утеплителем и без), сайдингом (пластиковый или металлосайдинг), фиброплитами, кирпича.

 
6 Избранные
проекты

Доставка проектов по России: Москва (Московская область), Санкт-Петербург (Ленинградская область), Краснодар, Ростов-на-Дону, Ставрополь, Сочи, Волгоград, Новосибирск, Белгород, Брянск, Воронеж, Саратов, Хабаровск, Астрахань, Нальчик, Владикавказ, Екатеринбург, Тюмень, Самара, Нижний Новгород, Казань, Пермь, Уфа, Челябинск, Красноярск, Ханты-Мансийск, Иркутск, Курган, Оренбург, Омск, Томск, Барнаул, Новокузнецк, Кемерово, Абакан, Чита, Якутск, Южно-Сахалинск, Петропавловск-Камчатский и страны ближнего зарубежья: Белоруссия, Украина, Казахстан