Добро пожаловать на http://vipplan.ru

Випплан Киселевск - это тысячи проектов домов в нашем каталоге!

Вы всегда сможете найти для себя проект дома вашей мечты! Даже если этого не случилось, мы готовы в любую минуту предложить проект индивидуального дома.

Забыли пароль?
Вы еще не регистрировались?

Перейдите по ссылке ниже на страницу регистрации.

Регистрация...

Внимание!!!

В проектную документацию могут быть внесены изменения любой сложности, в соответствии в Вашими пожеланиями!

Полезные статьи

Выбор проекта дома (площадь, этажность - 1 или 2 этажа)

Для того что бы выбрать проект дома, предварительно необходимо определиться, какой будет площадь будущего дома (решение зависит от количества человек, планирующих постоянно в нем проживать), количество спален, санузлов и ванных комнат, компоновка дома, одноэтажный, масардный или двухэтажный дом (зависит от площади участка и предпочтений будущих хозяев) ...

Искусственный камень

Среди современных материалов, особого внимания заслуживает искусственный камень. Естественность и красота натурального камня очевидна. Но нужно реально оценивать свои возможности и присмотреться именно к искусственному камню, так как сам искуственный камень и стоимость производства работ с ним в Киселевске значительно дешевле чем натуральный....

Проекты домов и коттеджей > Каталог проектов домов > Проект лаконичного двухэтажного дома Vg2369

Проект лаконичного двухэтажного дома Vg2369

Проект лаконичного двухэтажного дома
Зарегистрируйтесь

Проект № Vg2369


Техническое описание
Общая площадь: 113.71 м2
Жилая площадь: 72.14 м2
Высота здания: 8.45 м
Размеры дома: 8.4м×10.4м
Кол-во комнат: 4
Цокольный этаж: нет
Гараж: нет
Мансарда: нет

Kонструкция
Перекрытия: деревянные балки
Материал стен: Бетонные блоки

Архитектурный раздел
АР+КР - 48 000 (Со скидкой 20%)
Модель проекта лаконичного двухэтажного жилого дома размерами здания 8,04 x 10,04 м. Наружная отделка здания – сайдинг. Наружные стены – отсевоблок. Внутренние стены - отсевоблок. Перегородки - кирпичные, каркасные с ГКЛ. Пол 1 этажа - пол по грунту. Межэтажное, чердачное перекрытия - деревянные балки. Крыша двускатная. Кровля – ондулин. Окна — металлопластиковые.
Генплан застройки участка / Паспорт проекта 7000 руб / 10000 руб
Инженерный раздел (полный) 57000 руб
Смета на строительство 28500 руб
Теплотехнический расчет материалов стен Бесплатно
Стоимость проекта со незначительнми изменениями 57150 руб
Стоимость проекта со средними изменениями* 65700 руб
Стоимость проекта со значительными изменениями** 68000 руб

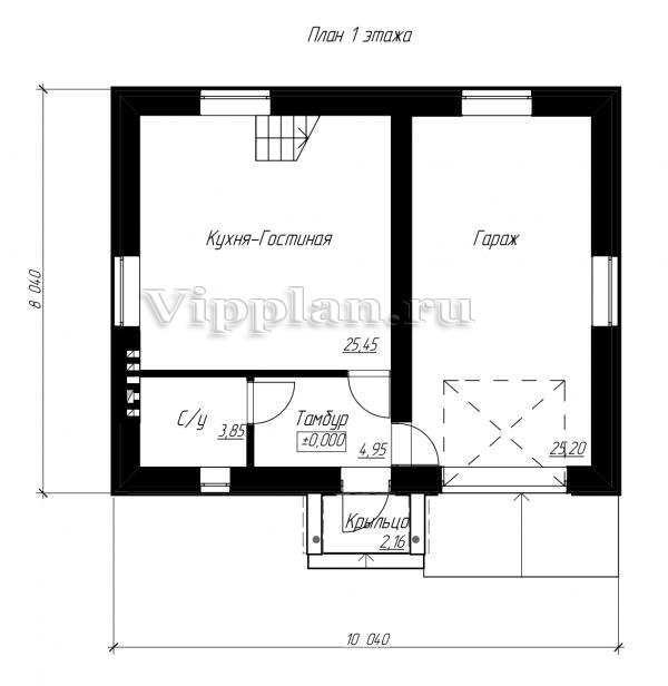
План первого этажа


Тамбур — 4,95 м2
Гостиная — 25,45 м2
С/у — 3,85 м2
Гараж — 25,2 м2

Проект лаконичного двухэтажного дома

Проект лаконичного двухэтажного дома

План второго этажа


Холл — 3,33 м2
Спальня — 11,16 м2
Спальня — 10,32 м2
Спальня — 25,2 м2
С/у — 4,24 м2
Проект лаконичного двухэтажного дома Проект лаконичного двухэтажного дома Проект лаконичного двухэтажного дома Проект лаконичного двухэтажного дома
Внесение изменений и привязка к участку строительства

В любой из проектов от компании VIPplan - Киселевск по вашему желанию могут быть внесены изменения в материалы стен, материалы наружной отделки дома, а также будет произведена адаптация проекта под конкретный регион строительства (с учетом грунтов региона, геологических особенностей вашего участка и местных климатических условий) - БЕСПЛАТНО !!! (кроме проектов со скидкой и проектов наших партнеров).

Любой из проектов, размещенных на сайте kiselevsk.vipplan.ru мы можем выполнить из требуемых вам строительных материалов: ячеистый бетон (газобетон, пеноблок), керамоблок, кирпич, шлакоблок, бетонный блок, дерево (брус, клееный брус), каркасная технология (деревянный каркас, металлокаркас (ЛСТК)).

Фасад дома и его наружную отделку так же возможно выполнить с применением различных облицовочных материалов: структурной штукатурки, (с утеплителем и без), сайдингом (пластиковый или металлосайдинг), фиброплитами, кирпича.

 
6 Избранные
проекты

Доставка проектов по России: Москва (Московская область), Санкт-Петербург (Ленинградская область), Краснодар, Ростов-на-Дону, Ставрополь, Сочи, Волгоград, Новосибирск, Белгород, Брянск, Воронеж, Саратов, Хабаровск, Астрахань, Нальчик, Владикавказ, Екатеринбург, Тюмень, Самара, Нижний Новгород, Казань, Пермь, Уфа, Челябинск, Красноярск, Ханты-Мансийск, Иркутск, Курган, Оренбург, Омск, Томск, Барнаул, Новокузнецк, Кемерово, Абакан, Чита, Якутск, Южно-Сахалинск, Петропавловск-Камчатский и страны ближнего зарубежья: Белоруссия, Украина, Казахстан